Building E shown, other buildings similar
Building A shown, other buildings similar
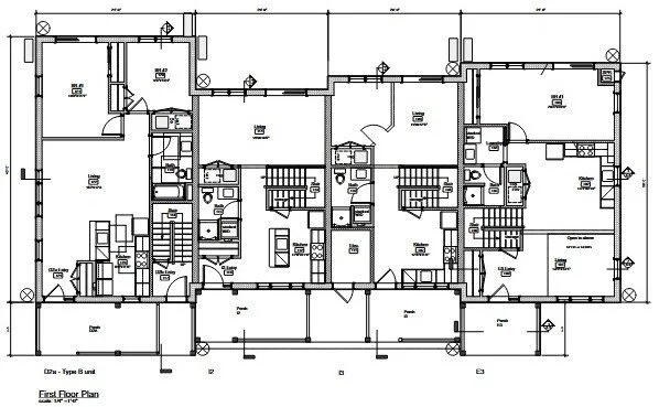
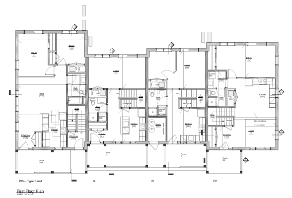
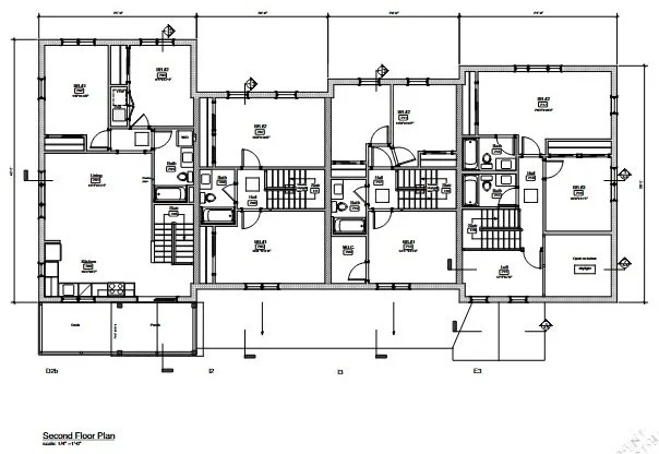
Interior Town Houses
I-2: 2 Bedroom/2 Bath - 1200 sf - two floors (20’ x 30' each)
I-3: 3 Bedroom/2 Bath – 1230 sf - two floors (20' x 32' each), optional ground floor Office or Bedroom
End Duplex
D-2a: 2 Bedroom/1 bath, ground floor – 859 sf - 24’ x 40’
D-2b: 2 Bedroom/1 bath, second floor – 1061 sf - 24’ x 40'
D-2 a+b: Both floors
D-3a: 3 Bedroom/1 1/2 bath, ground floor – 1074 sf - 26' x 46'
D-3b: 2 Bedroom/1 bath, second floor – 1182 sf - 26' x 46'
D-3 a+b: Both floors
End Town House
E-3: 3 Bedroom/2 1/2 Bath – 1638 sf; 24’ x 36’ ground floor with cathedral ceiling Living Room and 12'x 20' ground floor Bedroom
